CAD Drafting

Service Detial

CAD Drafting

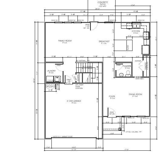
We provide accurate 2D CAD drawings for construction industry for wide range of projects including residential, commercial or infrastructural. We also provide customized CAD services ae per our client’s requirements.

Delivering Results with Solid Dependability